Мы угадали ваш город?
Да, верно Нет, другой
0
8-800-333-85-37
Бесплатно по России
Заказать звонок

ТГУ-НОРД-С 15 без газовой линейки с контроллером ZONT


Производитель:
Товар «под заказ»
Розничная цена:
170’000
Добавить к сравнению
+ В КОРЗИНУ КУПИТЬ В 1 КЛИК
Доставка по городу
Гарантия производителя
Описание
Документация

Группа компаний НПК «Завод модульного энергооборудования» предлагает купить ТГУ-НОРД-С 15 котел наружного размещения мощностью 15 кВт без газовой линейки с контроллером ZONT с доставкой по России и гарантией 2 года. Работает на природном и сжиженном газе. Есть в наличии на складе! 

ТГУ-НОРД-С - оптимальное решение для отопления и горячего водоснабжения частного дома. Его ключевая особенность — наружная установка (категория размещения 1 по ГОСТ 15150). Он устойчив к экстремальным температурам от -45°C до +40°C. По пожарной опасности установка классифицируется как наружная с категорией «ГН» (СП 12.13130.2009).

ТГУ-НОРД-С 15 котел наружного размещения


Не всегда можно размещать наружный котел:

  • соответствие нормам по расстояниям, пожароопасности, размещению на участке;
  • высота дымохода обеспечивает работу котла и рассеивание дымовых газов;
  • возможность удобной эксплуатации и обслуживания;

ТРЕБОВАНИЯ К УСТАНОВКЕ КОТЛОВ НАРУЖНОГО РАЗМЕЩЕНИЯ ГАЗОВЫХ И МОНТАЖУ УЛИЧНЫХ ГАЗОВЫХ КОТЛОВ, ИХ ПРОЕКТИРОВАНИЮ И МОНТАЖУ


Вы получите бесплатную консультацию, позвонив нам по телефону:
8-800-333-85-37

Или оставив заявку на звонок

ЗАКАЗАТЬ ЗВОНОК


Преимущества ТГУ-НОРД-С без газовой линейки с контроллером ZONT


  • Упрощённый процесс газификации: монтаж уличного газового котла для отопления частного домаизбавляет от необходимости приводить помещение в соответствие с требованиями газовой инспекции - экономит время и средства; 
  • Экономия площади: нет нужды выделять отдельное помещение под котельную, устанавливать систему дымоудаления и приточно-вытяжную вентиляцию;
  • В базовую комплектацию входят: бытовой газовый котел, светильник светодиодный автономный, коаксикальный дымоход, утепленный корпус, электрический обогреватель, гибкая подводка длинной 1 м, технический паспорт;
  • Монтажны йкомплект: всё необходимое для сборки ТГУ-НОРД-С в комплекте поставки;
  • Корпус установки выполнен из сендвич-панелей из нержавеющей стали и утеплителя между ними, толщиной 80 мм.
  • Возможность удалённого управления: встроенный контроллер ZONT (термостат с GSM-модулем и собственной SIM-картой), благодаря которому можно управлять ТГУ-НОРД котлом наружного размещения. Ключевые функции включают управление насосом загрузки бойлера, подключение погодозависимого датчика и датчика проникновения, мониторинг ошибок котла, а также настройку работы по суточному и недельному таймерам. Термостат также поддерживает технологии GSM™ и Wi-Fi.

Внутренний газопровод ТГУ-НОРД-С без газовой линейки с контроллером ZONT

На этапе проектирования и монтажа наружного газопровода необходимо установить газовый счётчик со всей требуемой запорной арматурой на подводе к котлу. Непосредственное подключение смонтированного газопровода к ТГУ-НОРД-С котлу наружного размещения выполняется с помощью идущей в комплекте сильфонной подводки.

Монтаж ТГУ-НОРД-С

Установка производится на несущей стене здания или другой несущей конструкции, учитывая определённые требования. В соответствии требованиями для установки ТГУ-НОРД-С котла наружного размещзения, расстояние по горизонтали в свету от корпуса наружного блока сплит-системы до ближайших входных дверей, вентиляционных решеток и открывающихся окон должно составлять не менее 0,5 метра. Расстояние от корпуса до оконных проемов, которые не открываются, специальными нормами не регламентируется. По вертикали в свету необходимо обеспечить зазор от нижней части корпуса до уровня земли или иной поверхности (например, кровли, балкона) минимум в 0,8 метра.

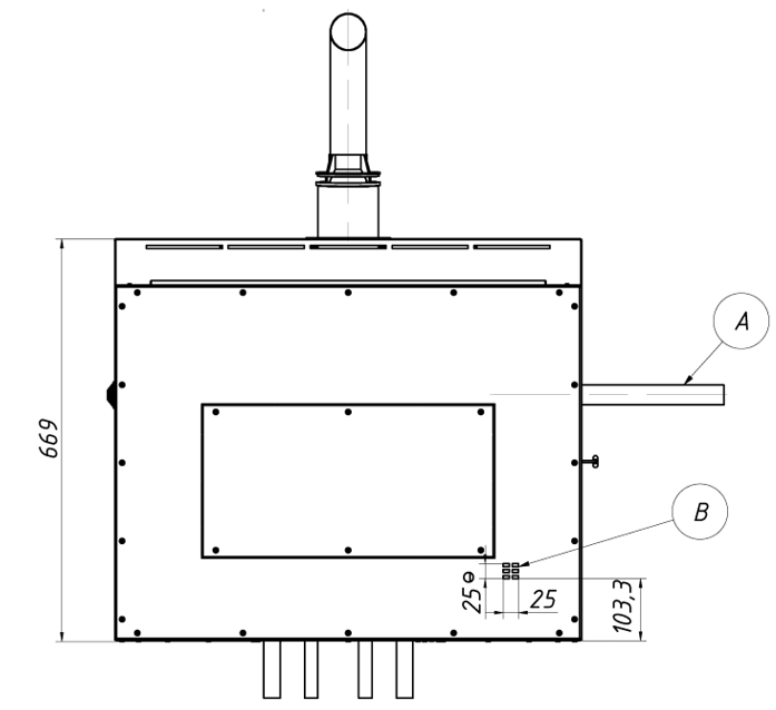
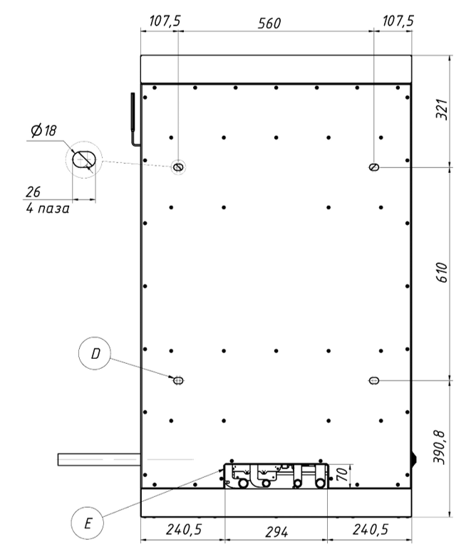
Габаритные размеры ТГУ-НОРД-С

габаритные размеры ТГУ-НОРД-С котел наружного размещения вид спереди и сбоку

габаритные размеры вид снизу ТГУ-НОРД-С котел наружного размещениягабаритные размеры вид сзади ТГУ-НОРД-С котел наружного размещения

 

Паспорт ТГУ-НОРД-ССкачать документ
Сертификат соответствия ТГУ-НОРД-ССкачать документ
Паспорт котла Mizudo M15TH – M40TH (одноконтурные)Скачать документ
Инструкция по монтажу ТГУ-НОРД-ССкачать документ

Задать вопрос


Выберите ваш город
×
 Краснодар
Продолжая использовать наш сайт, вы соглашаетесь с условиями обработки cookie-файлов и пользовательских данных с помощью Яндекс.Метрика, необходимых для аналитики и улучшения качества работы сайта и сервиса. Запретить эти действия можно в настройках браузера